Système LT

Description

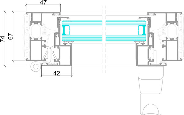
Système de battant de 67mm avec rupture de pont thermique
Ref. : Système LT

Le système LT isothermique a été conçu pour répondre aux exigences de grand confort. La combinaison de ce système et de triple vitrage procure de hautes prestations d’isolation thermique et/ou acoustique.

De manière à répondre aux exigences des maîtres d’œuvre, la LT Occulte a été élaborée. Cette version de la LT pallie à une lacune notable de la série minimaliste de coulissant OS. A présent, la série coulissante est compatible avec la série battante et donc cohérente pour répondre à l’expression architecturale. Par la suite, afin de compléter la vue réduite présentée par le LT Oculta, le LT-LightFrame a été conçu. Ce brin présente désormais un profil d'inverseur réduit, qui offre une vue centrale minimaliste de 35 mm.

 

 

Présentation

Droite | Ovale

Caché    

Cadre dormant

67mm

67mm
Cadre ouvrant

74mm

67mm

Remplissage

De 14 à 50mm 

28mm

Étanchéité

EPDM joints

EPDM joints

Barretes

24mm

24mm

Poids

maximale/vantail

 

 

 

 

 

Française (Int./Ext. 1|2 vantaux)-150Kg

Porte (Int./Ext. 1|2 vantaux)-180Kg

Oscillo-battant - 130Kg
Oscillo-coulissant - 160Kg

À l'Italienne - 120Kg
À Soufflet - 70Kg
Pivotant vertical - 175Kg
Pivotant horizontal- 175Kg

Repliable - 80Kg

Française (1|2 vantaux)-130Kg

Porte (1|2 vantaux) - 130Kg

Oscillo-battant-100 | 130Kg

À Soufflet-70Kg
 

 

 

 

 

Résultats des Tests

Marquage CE (EN 14351-1:2006 + A1:2010):

Perméabilité à l’AIR: Class 4

Etanchéité à l’EAU: Class E900

Résistance au VENT: Class C5

 

AVIS TECHNIQUE:

DTA 6/17-2368 V1 14-12-2017

+Info